浅井工務店
お問い合わせはお気軽に 052-741-4011
お電話での問合せ
問い合わせフォーム

リフォーム・改修実績

  • リフォーム・改修

アパート・マンション

名古屋市天白区|マンション機械式駐車場平面化工事

  • 機械式駐車場平面化After
  • 機械式駐車場平面化After
機械式駐車場平面化After
機械式駐車場平面化After

17年経過した機械式駐車場 借りる人の減少により平面化へ

新築当時、駐車場を確保する為、敷地内に機械式駐車場を設置。
その後、メンテナンス費用がかさむため、管理組合にて平面化を計画。
検索して、近傍の数社から、当社をお選びいただきました。

  • 機械式駐車場平面化
エリア
名古屋市天白区
施工期間
約3週間
築年数
築後約17年
構造
上下横行式パレット3段×6列と上下式パレット2段×2列
関連ページ
施工実績|機械式駐車場撤去・平面化工事 コラム|機械式駐車場(地上4階・地下1階)設置工事

ビフォーアフター

  • 機械式駐車場平面化 BEFORE

    既設の16台駐車場

  • 機械式駐車場平面化After AFTER

    平面6台へ

  • 機械式駐車場平面化 BEFORE

    既設の4台駐車場

  • 機械式駐車場平面化After AFTER

    平面2台へ

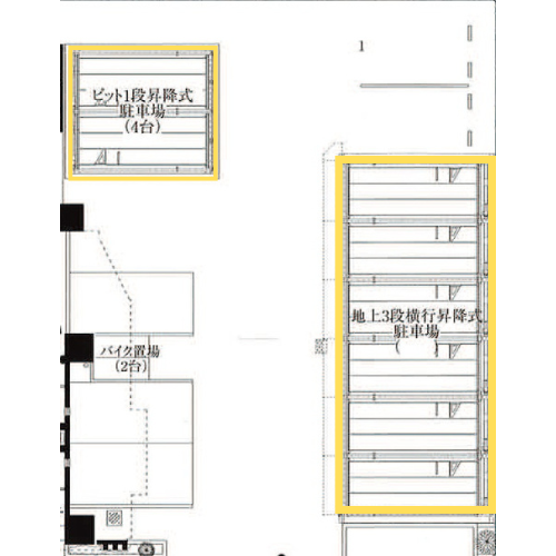
  • 機械式駐車場平面化 BEFORE

    黄色枠内が機械式

  • 機械式駐車場平面化 AFTER

    数字消し3カ所
    白線ライン U型8か所
    直線1か所
    U型ライン消し 1か所
    数字新設 11カ所
    車止め新設 8台分16個
    U型ガードパイプ 1か所
    車止め移設 1台分2個

施工中イメージ

  • 施工中イメージ

    移動式分圧消化設備の撤去準備中

  • 施工中イメージ

    囲い(敷地外から撮影)

  • 施工中イメージ

    解体作業

  • 施工中イメージ

    解体作業

  • 施工中イメージ

    解体作業

  • 施工中イメージ

    解体作業

  • 施工中イメージ

    機械撤去した状況

  • 施工中イメージ

    コンクリート施工中

  • 施工中イメージ

    コンクリート養生中(固まるのを待ちます)

  • 施工中イメージ

    4台ピット式駐車場作業中

  • 施工中イメージ

    土入れ

  • 施工中イメージ

    白線引き

お問い合わせ・ご相談

「土地活用」「大規模改修」等をご検討中の方、まずはお気軽にご相談ください。

052-741-4011 (電話受付時間 8:00〜17:00)